株式会社 双美 様ホームページはこちら
越谷市せんげん台のエクステリア業 株式会社 双美 様の事務所改装を施工させていただきました。
メイン工事として、
- OAフロア(置き式タイプ)の施工
- スチール家具の入替
- LAN配線・サーバー機器の収納整理
を行わせていただきました
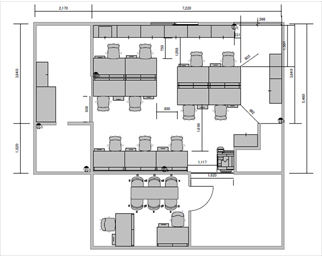
レイアウトご提案
ご提案 内容
片袖机(W=1200)+デスクトップパネル(H=350)+三段ワゴン+肘なしローバック椅子 各11セット
3枚引違書庫(W=900×H=1060×D=450) 13台
CPUボックス
双美様のご要望
1)明るく見せたいので机・書庫は白いもの
2)床・パネル・椅子はシックな色
施工前
旧型(E型)の机を使用されていました。業務中の片づけ、ご協力ありがとうございました。
1日目 OAフロア施工
ほこりの舞上り防止用のシートを敷いてから、部材の搬入です。
商品は 日本シューターの「ドリームフロア」です。
置き式タイプなので施工時間が短くて済みます。中央の写真は金物で見切りをつけています。
10時スタート、14時にはここまで仕上がっています。
25cm角なのでケーブルが集中しているところは埋め込むのに苦労していたようです。
床ができあり、「半のり」といわれる特殊なのりを塗っていきます。こののりは、何度でもカーペットをはがしてまた貼れるというすぐれものです。
レイアウト変更や配線のし直しをする時に便利なのです。
縦目、横目を交互に張っていくことできれいな市松模様の床が出来上がりました。
2日目 家具 設置
(1)イナバ Rivest(リベスト) 3枚スライディングドア書庫 RV-C3-11-9045
ベースを先に置き、レベルを取ります。書庫は組み立て式です。
耐震転倒防止用に金具の取付、横・上下連結を行います。
(2)イナバ VDシリーズ 片袖机 VD-127-3とデスクトップパネル VD-DTP312Fの組立取付です
(3)イナバ 3段ワゴンと、アイコ 椅子 OA1005を設置して完了です!!
全体的に濃いめのグレーカーペットの上に真っ白の書庫と机を置いたことによって以前の事務所よりも格段に明るくなりました。
(株)双美の皆様にも大変喜んでいただけました。






























