以前お付き合いのあった会社から独立されたお客様です。
事務所を借りたので、内装リフォームと什器の新設を承りました。
今回の仕事内容は下記のとおりです。
- 既存室内壁撤去および照明器具撤去
- 壁・天井クロス張替え工事
- エアコン新設
- コンセント移動
- 什器・複合機・パソコン新設
- 間仕切り工事
工事前
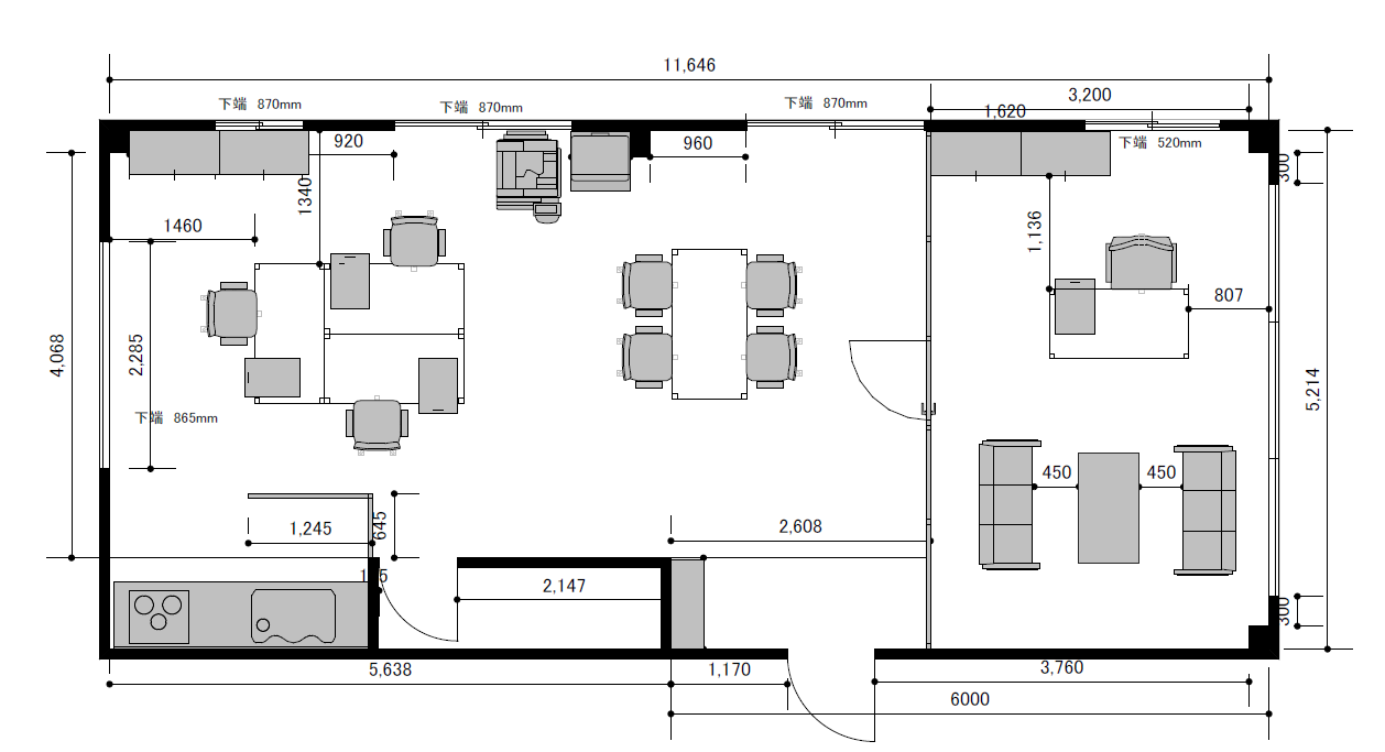
最終図面



外壁サンプルの下にキッチンパネルが隠れていて一時はどうなるかと思いました
【壁・天井クロス張替え工事】
壁紙:SP-2541 天井:SP-2509
【床タイルカーペット】
こちらはお客様がご自身で張替えをしていただきました
【什器・複合機新設】
ご提案・ご注文内容は下記のとおりです

【間仕切り設置工事】
お客様にも喜んで頂きました。
またご協力いただいた (有)並河商会様 (株)エレック様 ないとう総建様 誠にありがとうございました。